HYPER CENTRE VILLE
NANTERRE 92000
699 000 € *
* Honoraires à la charge du vendeur
Réf : 8731
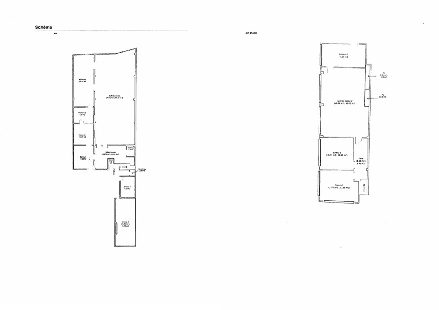
Dans le centre ville de Nanterre, proche place de la Boule et de la place du marché, nous vous proposons ce local d'activité à réhabiliter ou à réaménager selon votre projet.
Travaux à prévoir.
Fort Potentiel !
A votre disposition pour organiser u... Voir plus
310 m²
HYPER CENTRE VILLE
Descriptif
Réf : 8731
Dans le centre ville de Nanterre, proche place de la Boule et de la place du marché, nous vous proposons ce local d'activité à réhabiliter ou à réaménager selon votre projet.
Travaux à prévoir.
Fort Potentiel !
A votre disposition pour organiser u... Voir plus
310 m²
Fiche technique du bien
Bilan énergétique
GES non communiqué
Les informations sur les risques auxquels ce bien est exposé sont disponibles sur le site Géorisques : www.georisques.gouv.fr
Simuler votre prêt immobilier avec notre partenaire
Le quartier
Les horaires
Lundi
09h00 - 12h30 / 14h00 - 19h00
Mardi
09h00 - 12h30 / 14h00 - 19h00
Mercredi
09h00 - 12h30 / 14h00 - 19h00
Jeudi
09h00 - 12h30 / 14h00 - 19h00
Vendredi
09h00 - 12h30 / 14h00 - 19h00
Samedi
09h00 - 12h30 / 14h00 - 19h00
Dimanche
Fermé
